larchmont

(the addition)

los angeles, ca

< under construction >

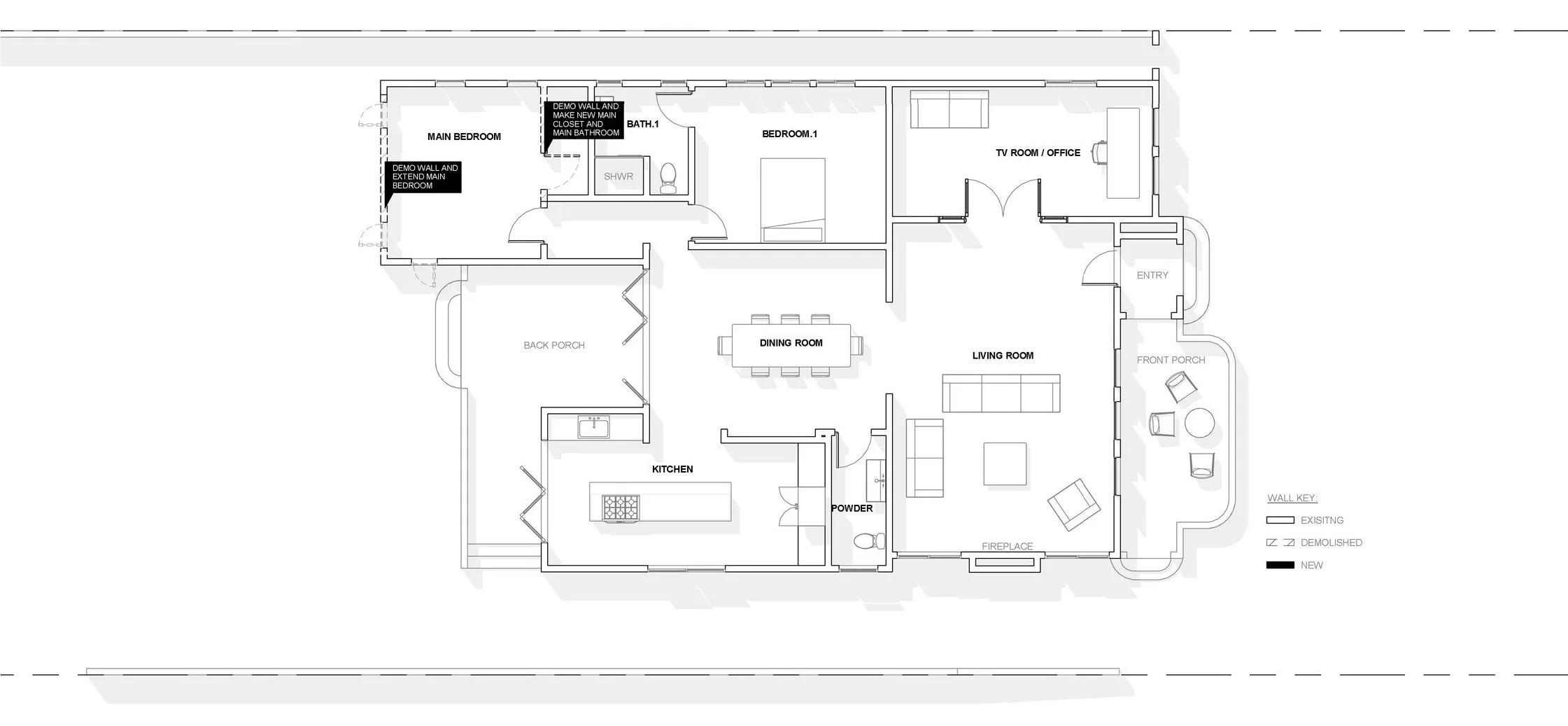
While the remodel of this gorgeous 1920s revival was underway, the project shifted to adding a 300 sf main suite addition towards the backyard. The new suite features a large bathroom area with dual sink vanity, steam shower, and a tub that is the main focal point of the room. Walking towards the bedroom is a sizable walk-in closet that features custom cabinetry with integrated lighting. The bedroom is lit by two long windows with a view of the new pool area and guest house. Finally, wide french doors open up to a private deck and garden.

the before…

the design…

EXISTING FLOOR PLAN

PROPOSED FLOOR PLAN

FRONT ELEVATION

LEFT ELEVATION

BACK ELEVATION

RIGHT ELEVATION

SECTION 1

SECTION 2

BEFORE

AFTER

the construction…

more coming soon…

Next
Next

TUFTS